• Katalóg ponúk » 
  • Dopytujem: Výstavbu hrubej stavby dvojrodinného domu, 320 m2

Dopytujem: Výstavbu hrubej stavby dvojrodinného domu, 320 m2

728272
Dopytujem: Výstavbu hrubej stavby dvojrodinného domu, 320 m2

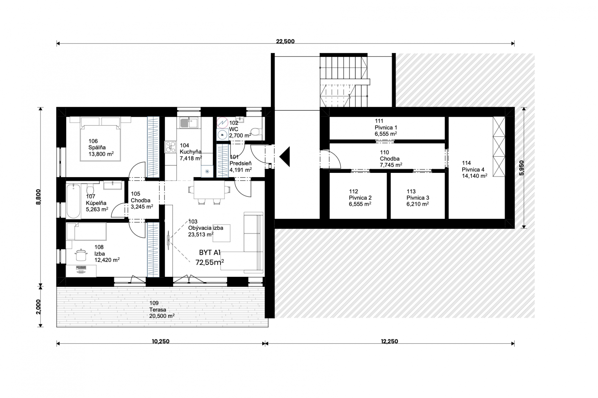
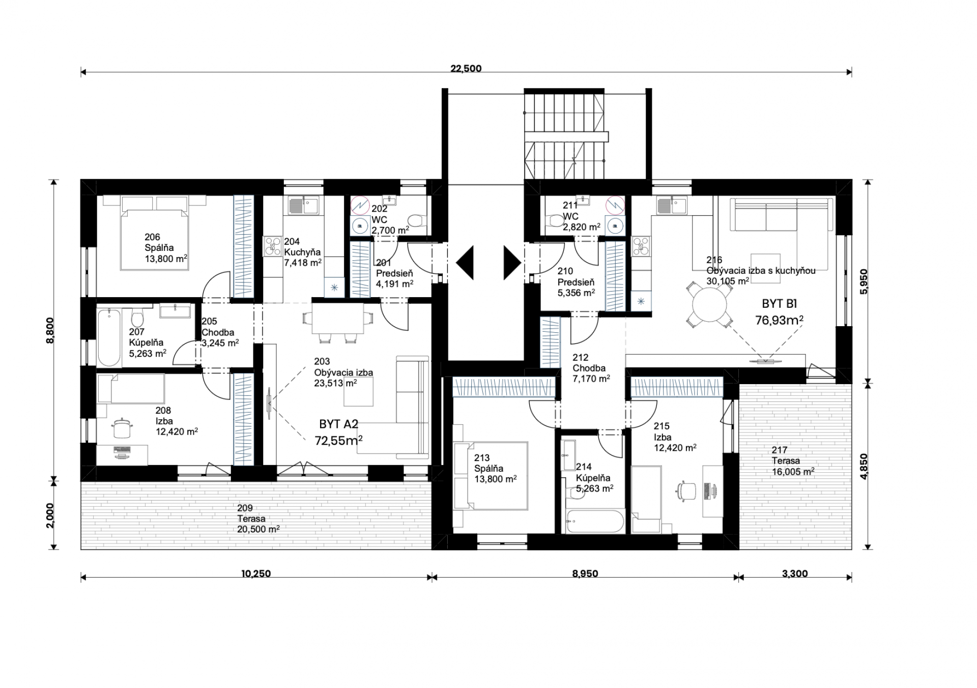
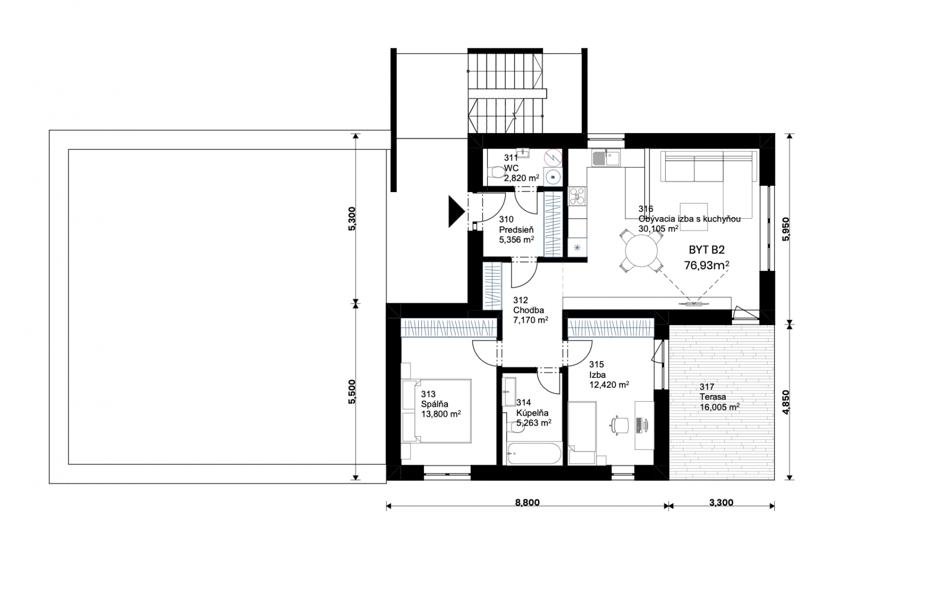
Dopytujem: murárske práce Popis: - hľadám murársku firmu/partiu murárov na vykonanie hrubej stavby dvojrodinného domu s dvomi bytovými jednotkami. - materiál mám už zaistený, dopytujem iba samotnú murársku prácu Rozsah: - hrubá stavba (základy, murivo, priečky, preklady,, železobetónová doska, vence a strecha) - materiál: vlastný, dodám na stavbu Množstvo/rozmer: - 320 m2 Lokalita: Okr. Svídník Termín: - v priebehu roka 2026 Doplňujúce informácie: - prosím o zaslanie orientačnej cenovej ponuky za prácu, prípadne hodinovej/m2 sadzby, a informáciu o časových možnostiach

NEHODNOTENÝ

Edixon Personal Services, s. r. o.
Stropkov

0

Dodavatel je v systému ePoptávka.cz registrován již 0 měsíců

Fotogaleria

Ďalšie dodávateľské ponuky